Chung cư CT5 - CT6 Thịnh Liệt
Email : thienduongnhadat.com@gmail.com
Hotline : 0964633626
Chi tiết dự án
LIÊN HỆ TƯ VẤN & ĐẶT LỊCH XEM DỰ ÁN
HOTLINE: 0964.63.36.26
**********


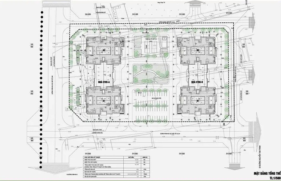
Được quy hoạch với diện tích hơn 2,73ha, Nhà ở xã hội CT5 - CT6 Thịnh Liệt là dự án nhà ở xã hội hiếm hoi nằm trong lòng phố với 4 mặt là các trục đường giao thông chính. Trong đó, đường mặt phố Tân Mai rộng 40m, đường mặt hồ Yên Sở rộng 30m và tuyến đường vào dự án rộng 40m, kết nối thẳng đến trục hướng tâm Tam Trinh - Kim Ngưu, Trương Định - Phố Huế - Bà Triệu, Giải Phóng – Lê Duẩn. Từ dự án đi hồ Hoàn Kiếm và Nhà hát lớn chỉ khoảng 5km.

Với lợi thế nằm trong khu vực có hạ tầng phát triển hiện đại bậc nhất, cư dân của Nhà ở xã hội CT5 - CT6 Thịnh Liệt Hoàng Mai dễ dàng tiếp cận và sử dụng các dịch vụ công cộng chất lượng cao về y tế, giáo dục, vui chơi giải trí của thành phố. Ngay cạnh đó là khu công viên hồ Đền Lừ và hồ Yên Sở rộng 323ha, mang đến nguồn không khí trong lành, mát mẻ suốt bốn mùa.

Đặc biệt, từ Chung cư CT5 - CT6 Thịnh Liệt còn có thể kết nối nhanh chóng ra các tuyến Vành đai 3, Ngọc Hồi, cao tốc Pháp Vân – Cầu Giẽ và QL1A đi các tỉnh Hà Nam, Ninh Bình, Hưng Yên, Hải Dương, Bắc Ninh, Hải Phòng, Quảng Ninh và các tỉnh phía Nam như Thanh Hóa, Nghệ An…nên rất thuận tiện cho các đại gia ngoại tỉnh muốn an cư tại Thủ đô.

Nhờ lợi thế nằm cạnh công viên hồ Đền Lừ và hồ Yên Sở - một trong những lá phối xanh lớn nhất Thủ đô, Nhà ở xã hội Thịnh Liệt được thụ hưởng trực tiếp giá trị thiên nhiên trong lành, giúp nâng cao chất lượng môi trường sống, sức khỏe, thể thao và giải trí mỗi ngày. Đồng thời mang lại giá trị phong thủy thịnh vượng, giúp cho gia chủ làm ăn phát đạt và nhiều tài lộc.

Trong phạm vi bán kính 5km, Dự án CT5 - CT6 Thịnh Liệt hội tụ đầy đủ các tiện ích về giải trí như Vincom Mega Mall Times City, Thủy cung Times City, Vincom Bà Triệu, Tràng Tiền Plaza, phố đi bộ Hồ Gươm, Nhà hát lớn, rạp chiếu phim CGV hiện đại…Các tiện ích về y tế gồm bệnh viện Bạch Mai, Việt Pháp, Tai Mũi Họng TW… cùng hệ thống giáo dục tiên tiến nhất Thủ đô như Vinschool, trường tiểu học Tân Mai, đại học Bách khoa, đại học Xây dựng, đại học Kinh tế Quốc dân…

Dự án dành gần 50% diện tích đất để chăm chút và đầu tư cho cảnh quan, Chung cư CT5 - CT6 Thịnh Liệt có nhà trẻ mẫu giáo, bãi đỗ xe ô tô, khu cây xanh công viên đều nằm trong khu đất, giúp cho cư dân và trẻ em đi học thuận tiện…những điều này tưởng chừng bình thường nhưng đó lại là cả một quá trình nghiên cứu tỷ mỉ để giúp cư dân có môi trường sống tốt hơn.

Qua bàn tay của các kiến trúc sư, mỗi căn hộ CT5 - CT6 Thịnh Liệt là sự kết hợp hài hòa giữa màu sắc, chất liệu và kiểu dáng nội thất cao cấp. Trải nghiệm phòng khách với không gian thoáng đãng dành cho những buổi giao lưu gia đình thì phòng ngủ lại ấm cúng, gần gũi là nơi nghỉ ngơi sau những giờ việc căng thẳng. Khu bếp nấu ăn có thiết kế cách biệt với phòng khách mang lại không gian thông thoáng, lịch sự cho căn nhà.

Chung cư CT5 - CT6 Thịnh Liệt là minh chứng tuyệt vời cho xu hướng “All in one” - tiểu đô thị khép kín với đầy đủ tiện ích. Chỉ cần vài bước chân, cư dân có thể thả ga mua sắm, giải trí, ăn uống hay thả mình thư giãn trong làn nước trong xanh. Đặc biệt, toàn bộ hệ thống tiện ích đều được chủ đầu tư dành riêng cho cư dân, mang lại những phút giây trải nghiệm tuyệt vời của cuộc sống.
Giữa một Thủ đô hoa lệ “đất chật người đông”, môi trường ngày càng ô nhiễm, việc tìm một không gian sống xanh lý tưởng không phải là điều dễ dàng. Khi quỹ đất xanh ngày càng hạn hẹp, xu hướng tìm kiếm chốn an cư ngay cạnh công viên, hồ điều hòa lại càng trở nên phổ biến. Nhà ở xã hội CT5 - CT6 Thịnh Liệt sẽ đáp ứng cho bạn

Toàn bộ căn hộ tại Chung cư CT5 - CT6 Thịnh Liệt được thiết kế với thiết kế ưu việt để đáp ứng toàn bộ nhu cầu nghỉ ngơi tươi mát của khách hàng, đảm báo đưa đến 100% lượng không khí tươi ráo vào trong từng căn hộ của bạn. Đặc biệt hơn nữa là cách bố trí hệ thống bế sát với lô gia để tạo ra sự thông thoáng cho bếp và căn hộ của gia chủ.

Yếu tố thông minh và hiện đại được đề cao nhằm đảm bảo tiến độ nhanh với chất lượng tốt cho công trình. Dự án CT5 - CT6 Thịnh Liệt được thi công và sử dụng công nghệ tiên tiến vượt trội với ưu điểm nổi bật giúp tiết kiệm nguyên liệu, đảm bảo tiến độ thi công nhanh, thân thiện với môi trường. Các vật liệu xây dựng được sử dụng đảm bảo yếu tố chịu ẩm cũng như khả năng cách âm tốt.
LIÊN HỆ TƯ VẤN & ĐẶT LỊCH XEM DỰ ÁN
HOTLINE: 0964.63.36.26
**********
TIN TỨC MỚI CẬP NHẬT
DỰ ÁN NỔI BẬT
Chat Zalo
Chat Facebook