CHUNG CƯ RICE CITY THƯỢNG THANH
LIÊN HỆ TƯ VẤN VÀ ĐẶT LỊCH XEM DỰ ÁN
HOTLINE: 0964.63.36.26
************

TỔNG QUAN DỰ ÁN RICE CITY THƯỢNG THANH
- Tên dự án: Nhà ở xã hội Rice City Thượng Thanh
- Vị trí dự án: Làng Gia Quất, Phường Thượng Thanh, Quận Long Biên, TP Hà Nội
- Chủ đầu tư: Công ty CP BIC Việt Nam
- Đơn vị thiết kế: Công ty Cổ phần Kiến trúc Lập Phương (CUBIC)
- Quy mô: cao 22 tầng, 03 tầng hầm
- Số lượng căn hộ: 600 căn
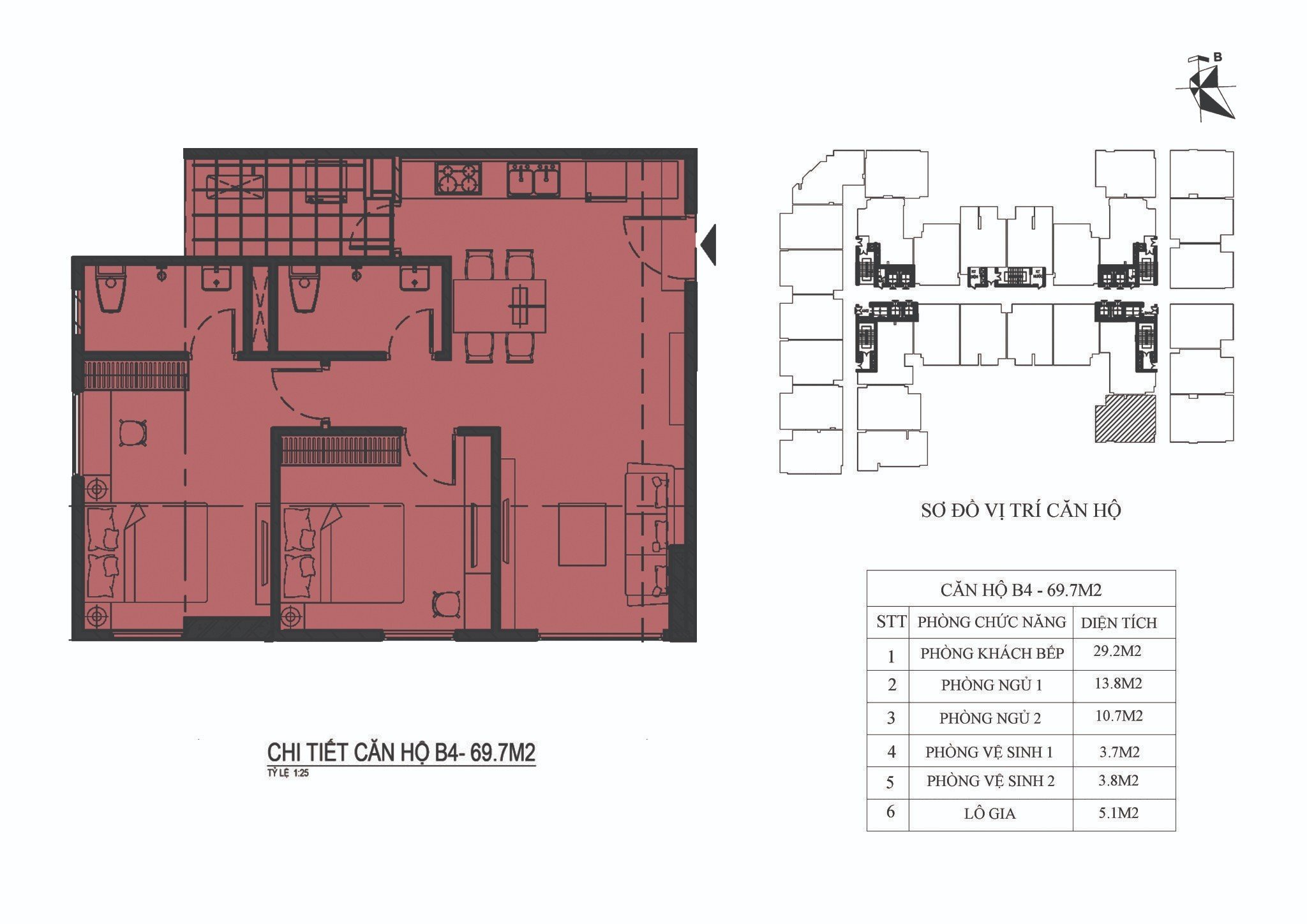
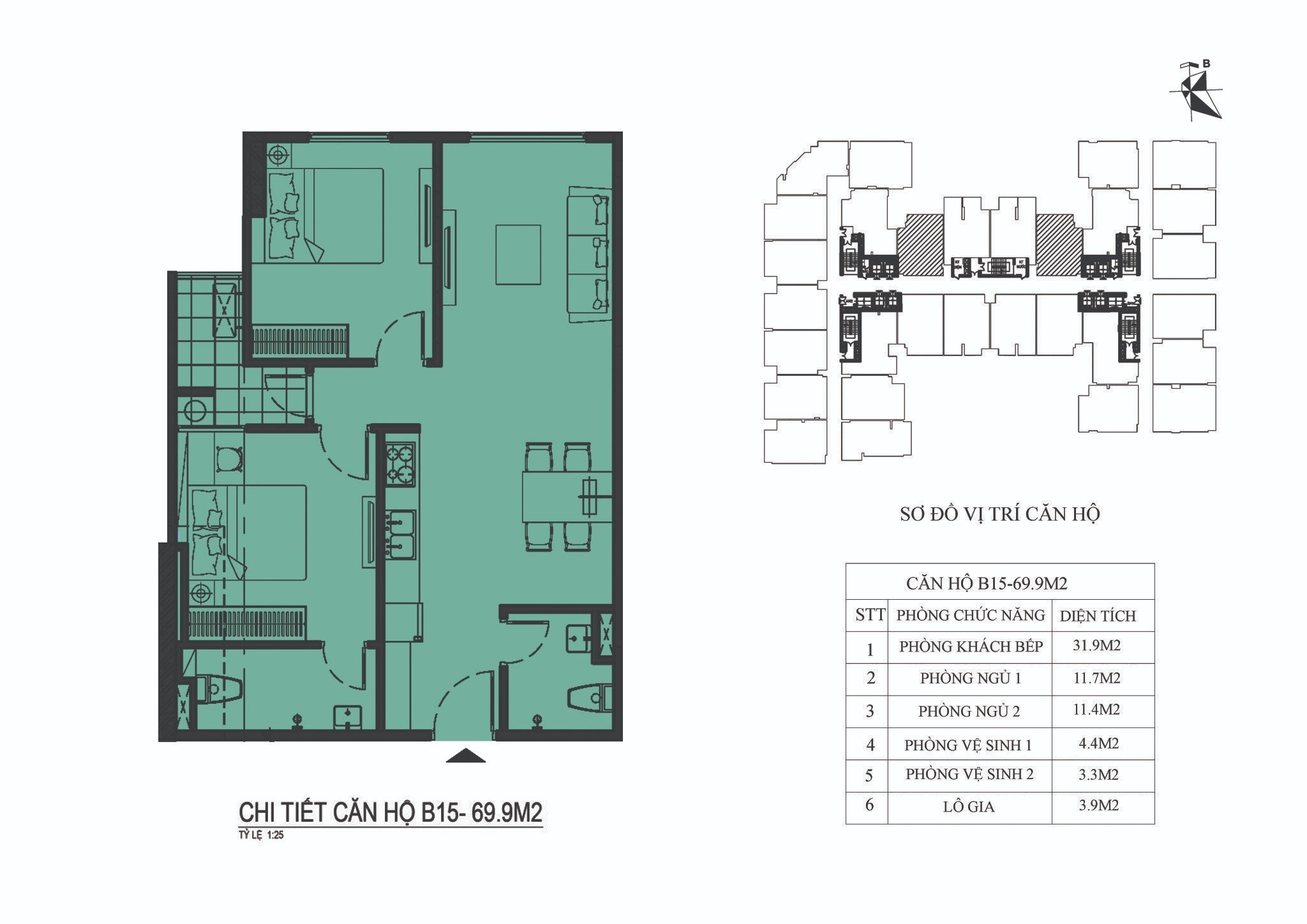
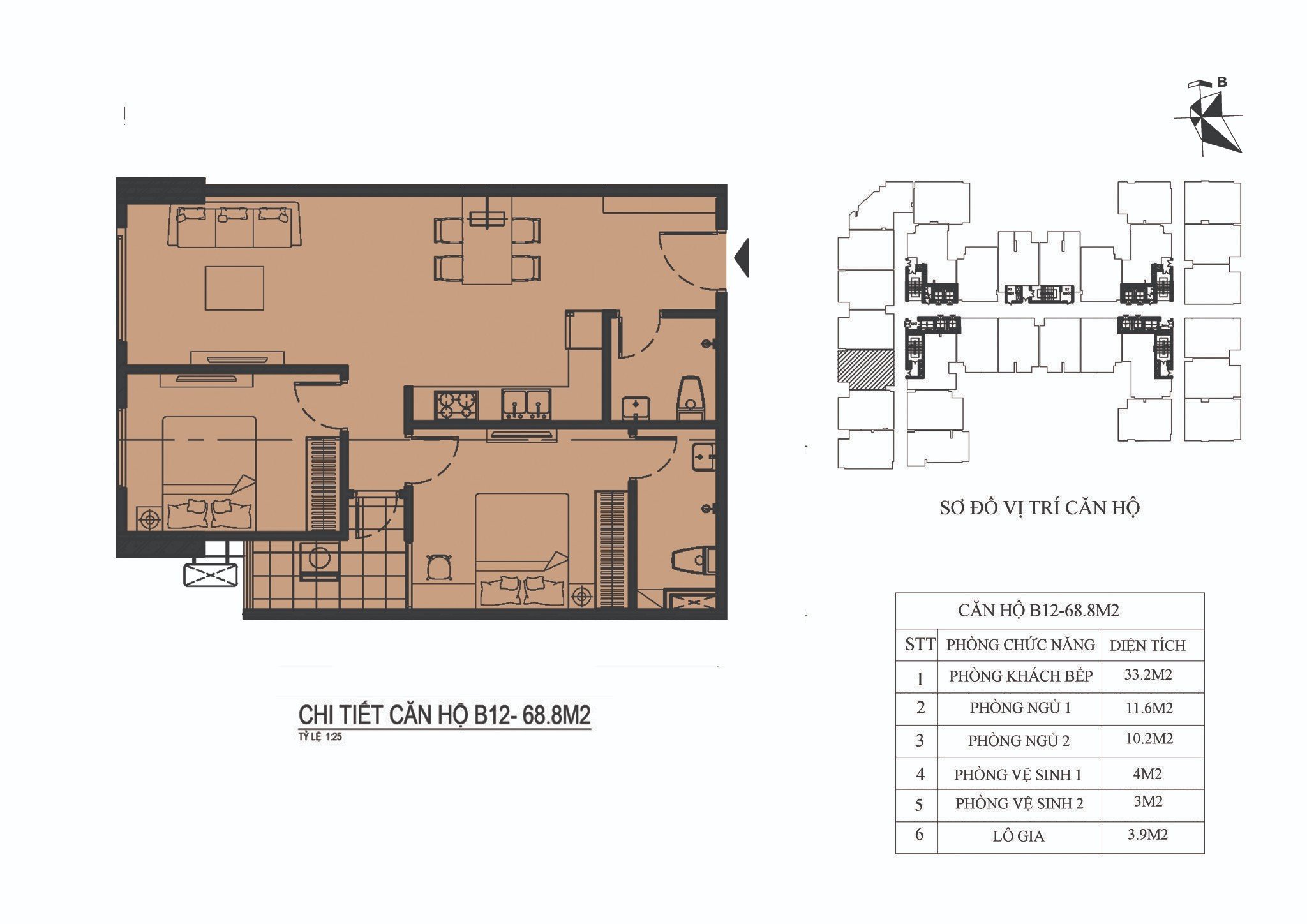
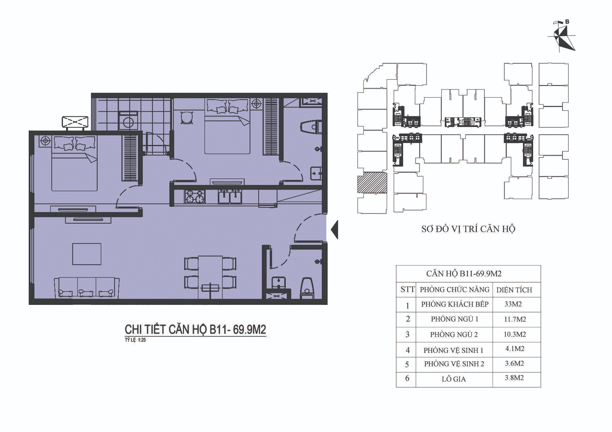
- Diện tích căn hộ: từ 64 - 76.6 m2
- Kinh phí đầu tư: 2.685 tỷ đồng
- Hình thức sở hữu: Sổ hồng lâu dài

VỊ TRÍ & TIỆN ÍCH DỰ ÁN RICE CITY THƯỢNG THANH
- Với người dân Long Biên và các khu vực lân cận, ai cũng có thể nhận thấy Rice City Thượng Thanh sở hữu vị trí đắt giá tại khu vực quận Long Biên. Nằm ngay tại đường Nguyễn Văn Cừ, nơi cư dân sinh sống rất lâu đời và đã hình thành rất nhiều các tiện ích về trường học, y tế, vui chơi mua sắm... Không chỉ vậy, khi xây dựng khu Nhà ở xã hội Thượng Thanh, chủ đầu tư đã nghiên cứu rất kỹ nhu cầu của khách hàng, từ đó, đưa ra những thiết kế vô cùng hợp lý nhằm đáp ứng tối đa các nhu cầu sở hữu nhà ở của khách hàng tại thị trường Hà Nội nói chung và thị trường Long Biên nói riêng.

- Nhà ở xã hội Rice City Thượng Thanh thuộc địa giới hành chính phường Thượng Thanh, quận Long Biên, TP Hà Nội có phía bắc giáp khu công viên cây xanh Tp theo quy hoạch (công viên hồ Đầm Nấm); Phía nam giáp khu dân cư tổ 5 và trường mầm non Thượng Thanh; Phía đông giáp đất đất nông nghiệp, dân cư phường Thượng Thanh và đường đấu nối với trục đường Cầu Chui-Đông Trù; Phía tây giáp khu chung cư Đầm Nấm.

- Trên khu đất thuộc phường Thượng Thanh, Chung cư Rice City Thượng Thanh chính là cửa ngõ phía Đông Hà Nội, là trung tâm giao thương huyết mạch phía Đông Hà Nội với các tỉnh Hải Phòng, Quảng Ninh, Hải Dương, Bắc Giang, Bắc Ninh, Lạng Sơn thông qua quốc lộ 5 và quốc lộ 1. Dự án Rice City Thượng Thanh cách cầu Chương Dương khoảng 3km, từ dự án cư dân có thể tiếp cận di chuyển vào nội thành chỉ mất 5 – 10 phút lái xe, nhờ đó mọi tiện nghi và nhịp sống sầm uất nơi đô thành vẫn luôn trong tầm tay.

- Hiện nay, khi nhu cầu khách mua căn hộ đang đề cao đến các dịch vụ tiện ích của dự án. “Bắt mạch” được thị hiếu này, Chủ đầu tư Rice City Thượng Thanh đã kỳ công quy hoạch hệ thống tiện ích đa dạng ngay tại nội khu dự án. Vì vậy, không cần đi đâu xa, chỉ cần trở về nhà thì mọi nhu cầu đều có thể kết nối. Từ những nhu cầu mua sắm - nội trợ đến thư giãn, rèn luyện và chăm sóc sức khỏe, sắc đẹp… Tất cả được đảm bảo trong chuỗi tiện ích bao gồm khu thương mại, quảng trường trung tâm, vườn cây bốn mùa, phòng khám nhi 24/7, bể bơi, nhà trẻ, phòng tập gym, khu thể thao,...

- Cùng với đó, tọa lạc ngay trung tâm Khu đô thị Khai Sơn, gần nút giao Nguyễn Văn Cừ - Cầu Chui đường 5, vị trí lý tưởng tại trung tâm quận Long Biên. Với vị trí này, khoảng cách từ Dự án Rice Ciy Thượng Thanh để kết nối và thừa hưởng tiện ích của các trung tâm mua sắm - giải trí, cơ sở giáo dục và cơ sở y tế tại Long Biên là rất ngắn. Cụ thể, chỉ trong bán kính dưới 2km, cư dân dự án có thể nhanh chóng tiếp cận tới các trung tâm thương mại lớn như Vincom Center, Big C - Savico Mega Mall, Aeon Mall… Song song, là hệ thống giáo dục phát triển với các trường học công lập như Thạch Bàn, Việt Hưng, Đức Giang, Nguyễn Gia Thiều, cùng nhiều trường học quốc tế như trường quốc tế Anh BIS, quốc tế Pháp Alexandre Yersin và Wellspring…

- Với chuỗi hơn tiện ích cao cấp, tiện nghi như: bể bơi, khu thương mại, quảng trường trung tâm, vườn cây bốn mùa, phòng khám nhi 24/7, nhà trẻ, phòng tập Gym, khu thể thao... cùng vị trí liền kề công viên hồ điều hòa 20ha, Rice City Thượng Thanh chắc chắn sẽ đáp ứng được tất cả các nhu cầu của khách hàng muốn tận hưởng cuộc sống.

- Ngoài ra, khu vực bãi đỗ xe rộng, đảm bảo chỗ để xe cho toàn bộ cư dân tòa nhà và Khu thương mại dịch vụ. Hệ thống an ninh được kiểm soát tối ưu và triệt để, tạo thành quần thể khép kín kiểm soát 24/7. Hệ thống phòng cháy chữa cháy ưu việt cùng lợi thế ngay cạnh phòng Cảnh sát PCCC Long Biên đảm bảo an toàn cho cư dân Rice City Thượng Thanh.

- Với cơ sở hạ tầng đồng bộ và tiềm năng phát triển của thị trường Long Biên, bất động sản khu vực này được dự đoán sẽ còn gia tăng hơn nữa trong thời gian tới. Cùng với mức giá vô cùng hợp lý và cạnh tranh bậc nhất trong khu vực, Rice City Thượng Thanh không chỉ mở ra cơ hội sở hữu căn hộ đáng sống bậc nhất Hà Nội mà còn mở ra cơ hội đầu tư tốt, thanh khoản cao trong bối cảnh thị trường BĐS hiện nay.
MẶT BẰNG DỰ ÁN RICE CITY THƯỢNG THANH
- Với phương châm kiến tạo nên một “không gian sống lý tưởng” cho mỗi cư dân, Chủ đầu tư đã lựa chọn nhà thầu xây dựng là nhà thầu uy tín nhất trên thị trường bất động sản hiện nay để thi công dự án, đồng thời cùng với nhà thầu tư vấn giám sát rất khắt khe trong công tác giám sát, kiểm định chất lượng thi công dự án. Do đó, khi trực tiếp tham quan Dự án Rice City Thượng Thanh, khách hàng có thể cảm nhận được sự chỉnh chu trong từng đường phào chỉ, điện, nước hay chất lượng bê tông, sơn bả,…

- Nằm tại “chính tâm” quận Long Biên, Rice City Thượng Thanh tọa lạc ngay trung tâm Khu đô thị Khai Sơn. Với vị trí này, dự án được đánh giá hội tụ đủ 3 tiêu chí chuẩn của một nơi an cư đáng sống “Cận thị, cận giang, cận lộ”. Tại đây, cư dân không chỉ được tận hưởng cuộc sống tiện nghi trong khu vực hiện đại và sầm uất mà còn được hưởng môi trường sống cân bằng và phong thủy tốt.


















- Tất cả các căn hộ Rice City Thượng Thanh đều được thiết kế có loggia theo kiến trúc “vi khí hậu”, giúp tiết kiệm năng lượng, luôn nhận được gió và ánh sáng tự nhiên từ mọi căn phòng.
LIÊN HỆ TƯ VẤN VÀ ĐẶT LỊCH XEM DỰ ÁN
HOTLINE: 0964.63.36.26
************