CHUNG CƯ ESSENSIA SPLENDORA
LIÊN HỆ TƯ VẤN VÀ ĐẶT LỊCH XEM DỰ ÁN
HOTLINE: 0964.63.36.26
************

TỔNG QUAN DỰ ÁN ESSENSIA SPLENDORA
- Tên dự án: Khu căn hộ Essensia
- Vị trí dự án: KĐT Bắc An Khánh, Huyện Hoài Đức, TP Hà Nội
- Chủ đầu tư: Công ty Cổ phần Địa Ốc Phú Long
- Diện tích đất dự án: 2,5 ha
- Mật độ xây dựng: 25%
- Diện tích tầng hầm: 2 ha
- Quy mô dự án: 4 tòa, cao 21-22 tầng
- Số lượng: 496 căn hộ cao cấp từ 2 đến 4 phòng ngủ (2 ban công)
- Các loại diện tích căn hộ: 105 – 122 – 144 m2
- Hiện trạng: Sẵn sàng bàn giao và cấp “Sổ hồng”
- Hình thức sở hữu: Sổ đỏ lâu dài.

VỊ TRÍ & TIỆN ÍCH DỰ ÁN ESSENSIA SPLENDORA
- Nằm trọn trong không gian xanh mát khổng lồ và thoáng đãng hiếm có tựa như chốn nghỉ dưỡng 5 sao tại vùng đất trứ danh Splendora, bốn toà tháp căn hộ đang hiện hữu nơi đây là một biểu tượng cho những giá trị bản nguyên thuần khiết nhất, để bạn thực sự tận hưởng ý nghĩa đích thực của cuộc sống. Là một chuẩn mực sống quốc tế tại Hà Nội trong thời gian dài nơi thu hút nhiều cộng đồng quốc tế sinh sống, các căn hộ Splendora giờ này được nâng cấp lên một tầm cao mới với thương hiệu Essensia, mang đến những giá trị sống hiện đại giống như triết lý thiết kế mà các KTS Pháp luôn theo đuổi về “một đô thị có khả năng tuần hoàn hướng đến tương lai bền vững hàng trăm năm.

- Toạ lạc ngay đầu Đại Lộ Thăng Long, vị trí cửa ngõ kết nối Khu Mỹ Đình - Trái tim kinh tế mới của thủ đô Hà Nội, Essensia tại Splendora được hưởng đặc quyền “không tắc đường” hiếm có nhờ sự quy hoạch thông thoáng và bài bản. Trong tương lai gần, Splendora và Essensia càng kết nối dễ dàng hơn nhờ sự phát triển hiện đại hơn của hệ thống đường vành đai 3.5, đường sắt đô thị và các khu đô thị vệ tinh lân cận…

- Essensia Splendora Bắc An Khánh đã bàn giao đưa vào sử dụng cùng hệ thống tiện ích cộng đồng phong phú, độc đáo như sân chơi trẻ em, vườn hoa, sân thể thao & BBQ, library & study hub, phòng gym cao cấp, trường mầm non quốc tế, trường quốc tế Mỹ St. Paul, trường Edison, phố đi bộ, bể bơi bốn mùa, … cùng rất nhiều tiện ích khác hiện hữu ngay trong khu căn hộ Essensia và quần thể Splendora để bạn đắp xây cuộc sống khỏe mạnh, thân – tâm – trí được tĩnh tại, nâng niu giữa những giá trị “wellness” đích thực và cuộc sống hạnh phúc hơn mỗi ngày như tinh thần Joie de vivre – Niềm vui sống – của người Pháp.

- Hệ thống tiện ích cộng đồng phong phú, độc đáo như sân chơi trẻ em, vườn hoa, sân thể thao & BBQ, library & study hub, phòng gym cao cấp, trường mầm non quốc tế, trường quốc tế Mỹ St. Paul, trường Edison, phố đi bộ, bể bơi bốn mùa, … cùng rất nhiều tiện ích khác hiện hữu ngay trong khu căn hộ Essensia và quần thể Splendora để bạn đắp xây cuộc sống khỏe mạnh, thân – tâm – trí được tĩnh tại, nâng niu giữa những giá trị “wellness” đích thực và cuộc sống hạnh phúc hơn mỗi ngày như tinh thần Joie de vivre – Niềm vui sống – của người Pháp

- Chung cư Essensia Bắc An Khánh mang trong mình nét đẹp cách tân cùng sự kết hợp tinh túy, độc đáo giữa kiến trúc cổ điển và hiện đại, căn hộ resort Essensia được thiết kế thông minh với tầm nhìn 300 độ, ban công rộng 12m đón trọn ánh sáng tự nhiên. Đặc biệt, cư dân Splendora hiện hữu là cộng đồng quốc tế dân trí cao, cùng chia sẻ những giá trị sống văn minh, bền vững và tận hưởng những dịch vụ chăm sóc khách hàng theo tiêu chuẩn của các khu nghỉ dưỡng 5 sao.

- Ngoài ra, Splendora còn áp dụng khái niệm mới về Hệ thống an ninh cư dân, hệ thống thiết kế nhằm đảm bảo an ninh tuyệt đối cho mỗi người dân sống nơi đây. Tại Splendora, bạn có thể thấy hình mẫu phát triển của những trung tâm kinh tế như New York, trung tâm thời trang và văn hoá Paris, trung tâm du lịch và giải trí như Dubai hay Sydney, biểu tượng cho cuộc sống toàn cầu.

- Không chỉ được hưởng trọn vẹn những tinh hoa hiện hữu của quần thể Splendora Bắc An Khánh, chung cư Essensia còn là bước ngoặc hướng đến đại đô thị văn hoá sáng tạo – một ngôi nhà của tương lai – sắp ra mắt.

- Với sự chung tay của các đối tác danh tiếng cùng các tổ chức quốc tế, một thành phố mới trong lòng kinh đô sáng tạo đang dần xuất hiện nơi phía Tây Hà Nội, gắn kết quá khứ vàng son với một tương lai tươi sáng và hơn thế nữa cho cộng đồng những người Hà Nội có tư duy cấp tiến.
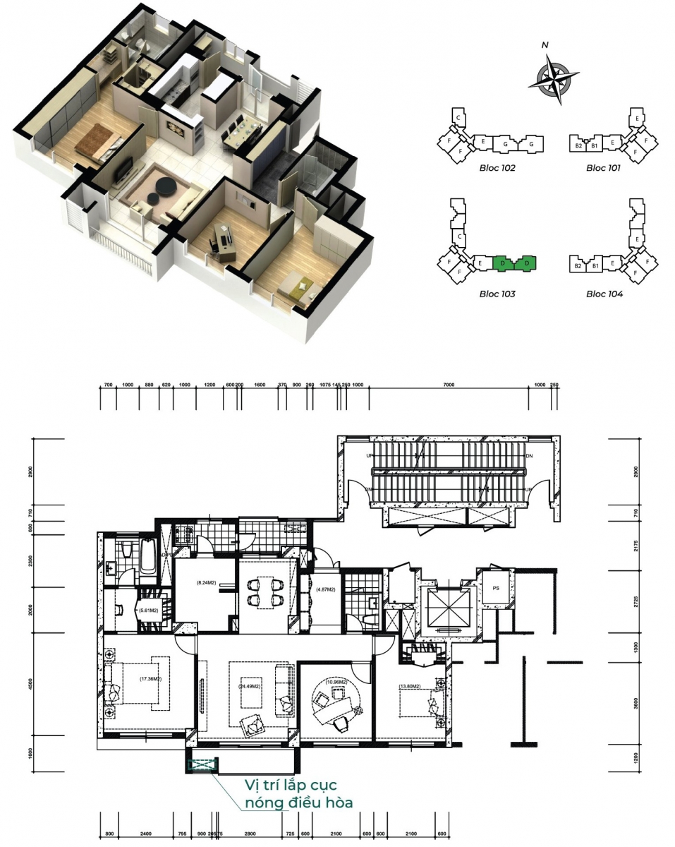
MẶT BẰNG DỰ ÁN ESSENSIA SPLENDORA
- Mang trong mình nét đẹp cách tân cùng sự kết hợp tinh túy, độc đáo giữa kiến trúc cổ điển và hiện đại, căn hộ resort Essensia được thiết kế thông minh với tầm nhìn 300 độ, ban công rộng 12m đón trọn ánh sáng tự nhiên. Đặc biệt, cư dân Splendora hiện hữu là cộng đồng quốc tế dân trí cao, cùng chia sẻ những giá trị sống văn minh, bền vững và tận hưởng những dịch vụ chăm sóc khách hàng theo tiêu chuẩn của các khu nghỉ dưỡng 5 sao.

- Không chỉ được hưởng trọn vẹn những tinh hoa hiện hữu của quần thể Splendora, Essensia còn là bước ngoặc hướng đến đại đô thị văn hoá sáng tạo – một ngôi nhà của tương lai - sắp ra mắt. Với sự chung tay của các đối tác danh tiếng cùng các tổ chức quốc tế, một thành phố mới trong lòng kinh đô sáng tạo đang dần xuất hiện nơi phía Tây Hà Nội, gắn kết quá khứ vàng son với một tương lai tươi sáng và hơn thế nữa cho cộng đồng những người Hà Nội có tư duy cấp tiến.






- Essensia Splendora thỏa mãn cái tôi sáng tạo giữa tổ ấm đầy chất thơ với căn hộ thiết kế rộng rãi, tầm nhìn lên đến 300 độ và ban công rộng lên đến 12 m2. Sống tại Essensia cư dân được tận hưởng môi trường giáo dục và văn hóa sáng tạo cho thế hệ mai sau, sống đủ đầy giữa tiện nghi ưu việt tựa như resort 5 sao, cộng đồng sinh thái chia sẻ, cùng dịch vụ quản lý 5 sao.
LIÊN HỆ TƯ VẤN VÀ ĐẶT LỊCH XEM DỰ ÁN
HOTLINE: 0964.63.36.26
************