CHUNG CƯ THE LEGEND
Nhận ký gửi bán & cho thuê Chung cư The Legend Tower
Hotline: 0964.63.36.26
************

TỔNG QUAN DỰ ÁN THE LEGEND
- Tên dự án: Tòa nhà hỗn hợp dịch vụ, thương mại, văn phòng và nhà ở The Legend Tower
- Địa điểm: Số 109 Nguyễn Tuân, Q. Thanh xuân, TP Hà Nội
- Chủ đầu tư: Công ty cổ phần Đại Việt Trí Tuệ (Brains Đại Việt)
- Đơn vị thiết kế: Công ty CP đầu tư và tư vấn công nghệ Archivina
- Nhà thầu thi: Công ty cổ phần Xây dựng Phục Hưng Holdings
- Ngân hàng bảo lãnh: Ngân hàng TMCP Đầu tư và Phát triển Việt Nam - BIDV
- Quy mô: 30 tầng nổi, 02 tầng hầm
- Diện tích đất xây dựng: 5.579m2
- Mật độ xây dựng phần tháp: 35,7%
- Diện tích nhà trẻ: 1.190m2
- Diện tích sinh hoạt cộng đồng: 460m2
- Tổng diện tích chỗ đỗ xe (303 chỗ ô tô + 687 chỗ để xe máy): 13.279,1m2
- Diện tích 2 tầng hầm: 8.337,5m2
- Diện tích đỗ xe tầng khối đế (tầng 2-4): 4.604,1m2
- Diện tích đỗ xe trên mặt sân: 275,5m2
- Tổng số căn hộ: 460 căn
- Hình thức sở hữu: Sổ hồng vĩnh viễn

VỊ TRÍ & TIỆN ÍCH DỰ ÁN THE LEGEND
- The Legend nằm trên ngã tư đường Nguyễn Tuân và Nguỵ Như Kon Tum có vị trí rất đẹp nằm trong quần thể của khu đô thị mới Trung Hòa – Nhân Chính cách Trung Tâm hội nghị quốc gia 1km và cách công viên Nhân Chính 100m. Đặc biệt dự án rất thuận tiện giao thông nằm trên các tuyến đường nối với các trục đường chính của Thành phố như đường vành đai 3 nối liền với sân bay Nội Bài và các tỉnh xung quanh Hà Nội, đường Lê Văn Lương, đường Nguyễn Trãi, đây là yếu tố rất thuận lợi để thực hiện dự án thành công về mặt đầu tư và xã hội.

- The Legend nằm tại số 109 Nguyễn Tuân, Phường Thanh Xuân Trung, Quận Thanh Xuân, TP Hà Nội. Với danh giới như sau:
- Phía Đông Nam gần đường Nguyễn Trãi
- Phía Tây Bắc gần đường Lê Văn Lương (Trần Duy Hưng)
- Phía Tây Nam gần đường Khuất Duy Tiến
- Phía Đông Bắc giáp Khu tổ hợp văn phòng, nhà ở Hapulico Complex

- Đặc biệt, The Legend 109 Nguyễn Tuân rất thuận tiện giao thông khi nằm trên các tuyến đường nối với các trục đường chính của thành ph. Nối liền với các tỉnh xung quanh Hà Nội và sân bay Nội Bài như đường Nguyễn Trãi, đường Lê Văn Lương. Đây là yếu tố rất thuận lợi để dự án thành công về xã hội và đầu tư. Trong bán kính chưa đầy 2km, từ The Legend có thể dễ dàng di chuyển, kết nối đến các khu thương mại, vui chơi lớn, công viên, hồ điều hòa. Gần trường học, bệnh viện… Không chỉ sở hữu những tiện ích đồng bộ từ xung quanh khu vực như: tiếp giáp khu đô thị Trung Hòa – Nhân Chính và các trung tâm thương mại sầm uất bậc nhất hiện nay, cư dân tại The Legend Tower còn được thừa hưởng các tiện ích sẵn có ngay tại dự án với hệ thống dịch vụ đạt chuẩn 5 sao.

- Nhằm mang lại cuộc sống thoải mái đầy đủ tiện ích, giúp vơi bớt đi nỗi lo toan và tiết kiệm thời gian, công sức cho các cư dân, Chủ đầu tư The Legend đã xây dựng hệ thống tiện ích đầy đủ cùng dịch vụ hoàn hảo, chia sẻ những nhu cầu dù là nhỏ nhất của cư dân.

- Với phương châm đem đến cho khách hàng một cuộc sống thoải mái và tiện nghi, các nhà làm Dự án The Legend 109 Nguyễn Tuân không những chú trọng đặc biệt đến thiết kế các căn hộ cho phù hợp với phong thủy mà còn đem đến cho các khách hàng của mình một cuộc sống đầy đủ ngay chính tại nơi đây mà không phải đi bất cứ đâu như: mua sắm, giải trí, chăm sóc sức khỏe, làm đẹp, tập luyện thể thao... Các tiện ích ngay tại dự án giúp bạn tiết kiệm nhiều thời gian, công sức và tiền bạc sẽ nâng tầm cuộc sống cho bạn.

- Toàn bộ căn hộ tại Chung cư The Legend Nguyễn Tuân được thiết kế với thiết kế ưu việt để đáp ứng toàn bộ nhu cầu nghỉ ngơi tươi mát của khách hàng, đảm báo đưa đến 100% lượng không khí tươi ráo vào trong từng căn hộ của bạn. Đặc biệt hơn nữa là cách bố trí hệ thống bế sát với lô gia để tạo ra sự thông thoáng cho bếp và căn hộ của gia chủ.

- Tại Chung cư The Legend 109 Nguyễn Tuân, cư dân sẽ được hưởng một cuộc sống tiện nghi và thuận tiện với hệ thống an toàn, hệ thống thang máy chở người và hàng hóa riêng biệt nhằm đảm bảo lưu lượng di chuyển của cư dân vào giờ cao điểm, hệ thống an ninh đồng bộ, camera giám sát 24/24, máy phát điện dự phòng khởi động sau 15 giây khi xảy ra sự cố, tầng hầm để xe rộng rãi đáp ứng nhu cầu đi lại của cho cư dân

- Với những thiết kế hiện đại, áp dụng các tiêu chuẩn kiểu mẫu cho những căn hộ tại Chung cư The Legend người mua nhà có thể hoàn toàn yên tâm về không gian sống, việc vận dụng các yếu tố phong thuỷ vào trong từng thiết kế với chủ đạo các căn hộ đều lấy cảm hừng “Chạm tay vào Nắng và Gió” kết hợp tinh tế với thiên nhiên, mang thiên nhiên vào từng căn hộ nhưng vẫn giữ được sự sang trọng và đẳng cấp.
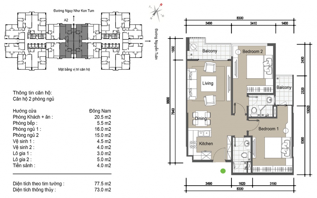
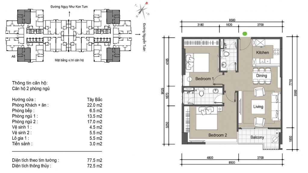
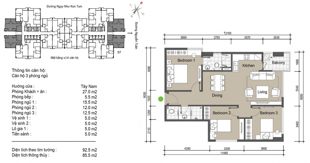
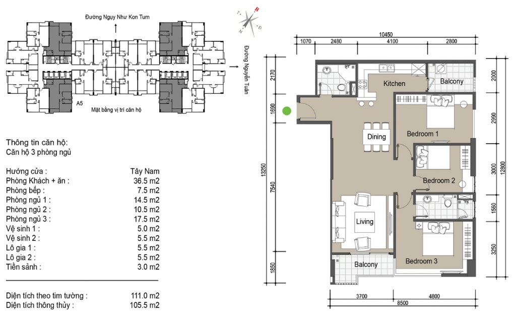
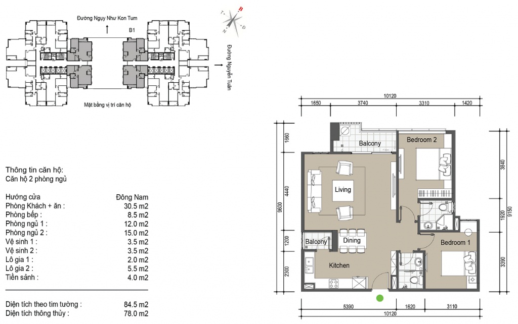
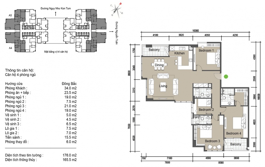
MẶT BẰNG DỰ ÁN THE LEGEND
- Với phương châm “Xây nhà cho khách phải giống như xây nhà cho mình”, Chủ đầu tư Dự án The Legend đã rất chú trọng lựa chọn đối tác tư vấn thiết kế, nhà thầu thi công và đơn vị giám sát uy tín hàng đầu. Ngoài ra, vật liệu sử dụng cho công trình cũng đều được kiểm định nghiêm ngặt, đảm bảo sự tiện dụng và tối tân nhất, mang đến không gian sống chất lượng cho cư dân.


- Được tư vấn thiết kế bởi những kĩ sư vàng của Việt Nam căn hộ tại The Legend mang đến vẻ đẹp sang trọng, phong cách thượng lưu cho chủ nhân ngôi nhà. Mỗi căn hộ được thiết kế để có thể lấy được hầu hết ánh sáng và gió trời vào trong căn hộ mang đến cảm giác thư giãn và thoải mái sau những giờ phút làm việc căng thẳng và mệt mỏi. Bên cạnh đó, phong cách trang trí, nội thất tại đây cũng là điểm cộng không thể bỏ qua khi lựa chọn nơi đây là nơi xây dựng tổ ấm của mình.






- Mỗi chi tiết nội thất đều toát lên vẻ thanh lịch, sang trọng đúng chất, để gia chủ có thể trải nghiệm đẳng cấp sống đỉnh cao trong từng centimet. Hơn thế, toàn bộ quang cảnh thành phố sôi động sẽ tràn vào nhà qua tầm nhìn paronama không giới hạn, cả thủ đô hoa lệ đều được thu trọn vào tầm mắt của chủ nhân
LIÊN HỆ TƯ VẤN VÀ ĐẶT LỊCH XEM DỰ ÁN
HOTLINE: 0964.63.36.26
************