CHUNG CƯ C1 - C2 XUÂN ĐỈNH RESIDENCE
Nhận ký gửi bán & cho thuê Chung cư C1-C2 Xuân Đỉnh
Hotline: 0964.63.36.26
************

TỔNG QUAN DỰ ÁN C1 - C2 XUÂN ĐỈNH RESIDENCE
- Tên dự án: Khu nhà ở C1, C2 Xuân Đỉnh
- Tên thương mại: Xuân Đỉnh Residence
- Vị trí dự án: Số 323 Xuân Đỉnh, P.Xuân Đỉnh, Q.Bắc Từ Liêm, TP Hà Nội
- Chủ đầu tư: Công ty Cổ Phần Thi Công Cơ Giới Xây Lắp.
- Đơn vị tư vấn thiết kế: Công ty Thiết kế và xây dựng DC
- Đơn vị tư vấn giám sát: Công ty CP Tư vấn TK XD KD nhà
- Cơ quan thẩm định: Sở Xây Dựng Hà Nội.
- Tổng diện tích xây dựng: 4214.6 m2.
- Quy mô: 450 căn hộ.
- Mật độ xây dựng: 39,11%
- Thông tin chi tiết Tòa C1:
- Diện tích xây dựng tầng 1: 1.250m2
- Tổng diện tích sàn: 20.450m2 không bao gồm diện tích hầm, tầng kỹ thuật, tum thang.
- Chiều cao tầng 1: 4,2 m2, chiều cao tổng công trình từ cốt đến mái 63m.
- Chiều cao tầng hầm: 3,9m tính từ hầm đến cốt.
- Số tầng: 17 tầng nổi không bao gồm tầng kỹ thuật và tum thang, 01 tầng hầm.
- Thông tin chi tiết Tòa C2:
- Diện tích xây dựng tầng 1: 865 m2
- Tổng diện tích sàn: 12.975m2 không bao gồm diện tích hầm, tầng kỹ thuật, tum thang.
- Chiều cao tầng 1: 4,2 m2, chiều cao tổng công trình từ cốt đến mái 56.6m.
- Chiều cao tầng hầm: 3,6m tính từ sàn hầm đến cốt.
- Số tầng: 15 tầng nổi không bao gồm tầng kỹ thuật và tum thang, 01 tầng hầm.
- Hình thức sở hữu: Sổ hồng vĩnh viễn

VỊ TRÍ & TIỆN ÍCH DỰ ÁN C1 - C2 XUÂN ĐỈNH RESIDENCE
- Chung cư C1 C2 xuân Đỉnh có vị trí vô cùng thuận lợi: Mặt đường ngõ 323 Xuân Đỉnh được Chủ đầu tư dự án mở rộng thành 17 m, 4 làn xe thẳng ra công viên Hòa Bình. Kết nối với KĐT Ngoại Giao Đoàn và Tây Hồ Tây. Chung cư C1, C2 Xuân Đỉnh nằm tại trung tâm của những tuyến đường giao thông lớn và nằm trong khu vực có xu hướng vùng kinh tế phát triển mạnh trong những năm tới. Đặc biệt hơn nữa, từ ví trị dự án C1, C2 Xuân Đỉnh bạn có thể dễ dàng di chuyển đến các trường Đại Học, Bệnh Viện, Công Viên, Sân Bay, khu vui chơi giải trí hay các trường liên cấp: mầm non, tiểu học, trung học… Kết hợp với những tiện ích có tại khu Ngoại Giao Đoàn tạo lên khu đô thị đẳng cấp với những tiện ích sang trọng và hiện đại.

- Bên cạnh đó, Dự án 323 Xuân Đỉnh có một lợi thế lớn là được sở hữu các tiện ích sẵn có của khu Ngoại Giao Đoàn như trường học quốc tế, các trường Đại học, bệnh viện, công viên, khu vui chơi giải trí … Ngoài ra, để đảm bảo an ninh cho các tổ chức Quốc tế, Khu Ngoại Giao Đoàn còn được chính phủ đặc biệt quan tâm đến an ninh của toàn khu nói chung, và các Đại sứ quán văn phòng phi chính phủ nói riêng. Cùng với rất nhiều các tiện ích xung quanh, khu đô thị Ngoại Giao Đoàn đã hội tụ đầy đủ các yếu để tạo nên một khu đô thị đẳng cấp.

- Ngoài ra, cư dân tương lai của Chung cư C1-C2 Xuân Đỉnh còn được hưởng tiện ích nội bộ tại chính dự án, có thể kể đến là khu dịch vụ và các cửa hàng tiện ích được bố trí ở tầng thương mại tại dự án. Người dân nơi đây thuận tiện & dễ dàng cho việc chăm sóc sức khỏe ngay tại khu dịch vụ chăm sóc sức khỏe & hoạt động cộng đồng ở khu chung cư C1 - C2 Xuân Đỉnh

- Khu nhà ở Xuân Đỉnh với nhiều khu tiện ích phục vụ cư dân tại khu nhà như thư viện, siêu thị, trung tâm thương mại,khu vực dành cho văn phòng. Điểm đặc biệt là Dự án C1 - C2 Xuân Đỉnh chú trọng đến phát triển không gian vui chơi giải trí gần gũi với thiên nhiên như: các khuôn viên cây xanh, vườn hoa, sân chơi danh cho trẻ và không gian dành cho người cao tuổi.

- Với phương châm đem đến cho khách hàng một cuộc sống thoải mái và tiện nghi, các nhà làm Dự án 323 Xuân Đỉnh không những chú trọng đặc biệt đến thiết kế các căn hộ cho phù hợp với phong thủy mà còn đem đến cho các khách hàng của mình một cuộc sống đầy đủ ngay chính tại nơi đây mà không phải đi bất cứ đâu như: mua sắm, giải trí, chăm sóc sức khỏe, làm đẹp, tập luyện thể thao... Các tiện ích ngay tại dự án giúp bạn tiết kiệm nhiều thời gian, công sức và tiền bạc sẽ nâng tầm cuộc sống cho bạn.

- Toàn bộ căn hộ tại Chung cư C1 - C2 Xuân Đỉnh được thiết kế với thiết kế ưu việt để đáp ứng toàn bộ nhu cầu nghỉ ngơi tươi mát của khách hàng, đảm báo đưa đến 100% lượng không khí tươi váo vào trong từng căn hộ của bạn. Đặc biệt hơn nữa là cách bố trí hệ thống bế sát với lô gia để tạo ra sự thông thoáng cho bếp và căn hộ của gia chủ.

- Tại Chung cư 323 Xuân Đỉnh, cư dân sẽ được hưởng một cuộc sống tiện nghi và thuận tiện với hệ thống an toàn, hệ thống thang máy chở người và hàng hóa riêng biệt nhằm đảm bảo lưu lượng di chuyển của cư dân vào giờ cao điểm, hệ thống an ninh đồng bộ, camera giám sát 24/24, máy phát điện dự phòng khởi động sau 15 giây khi xảy ra sự cố, tầng hầm để xe rộng rãi đáp ứng nhu cầu đi lại của cho cư dân

- Với những thiết kế hiện đại, áp dụng các tiêu chuẩn kiểu mẫu cho những căn hộ tại Chung cư C1-C2 Xuân Đỉnh người mua nhà có thể hoàn toàn yên tâm về không gian sống, việc vận dụng các yếu tố phong thuỷ vào trong từng thiết kế với chủ đạo các căn hộ đều lấy cảm hừng “Chạm tay vào Nắng và Gió” kết hợp tinh tế với thiên nhiên, mang thiên nhiên vào từng căn hộ nhưng vẫn giữ được sự sang trọng và đẳng cấp.
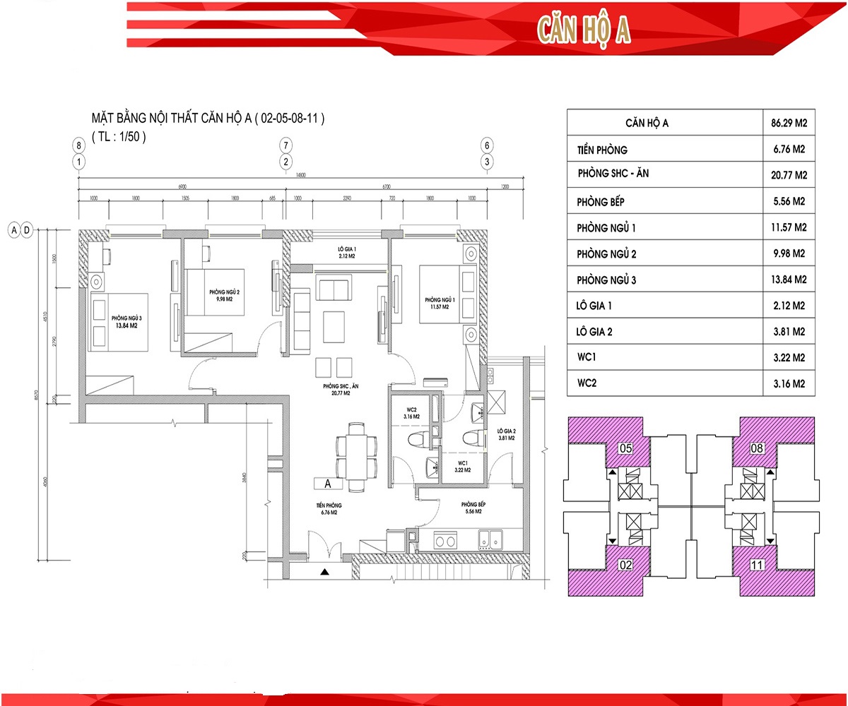
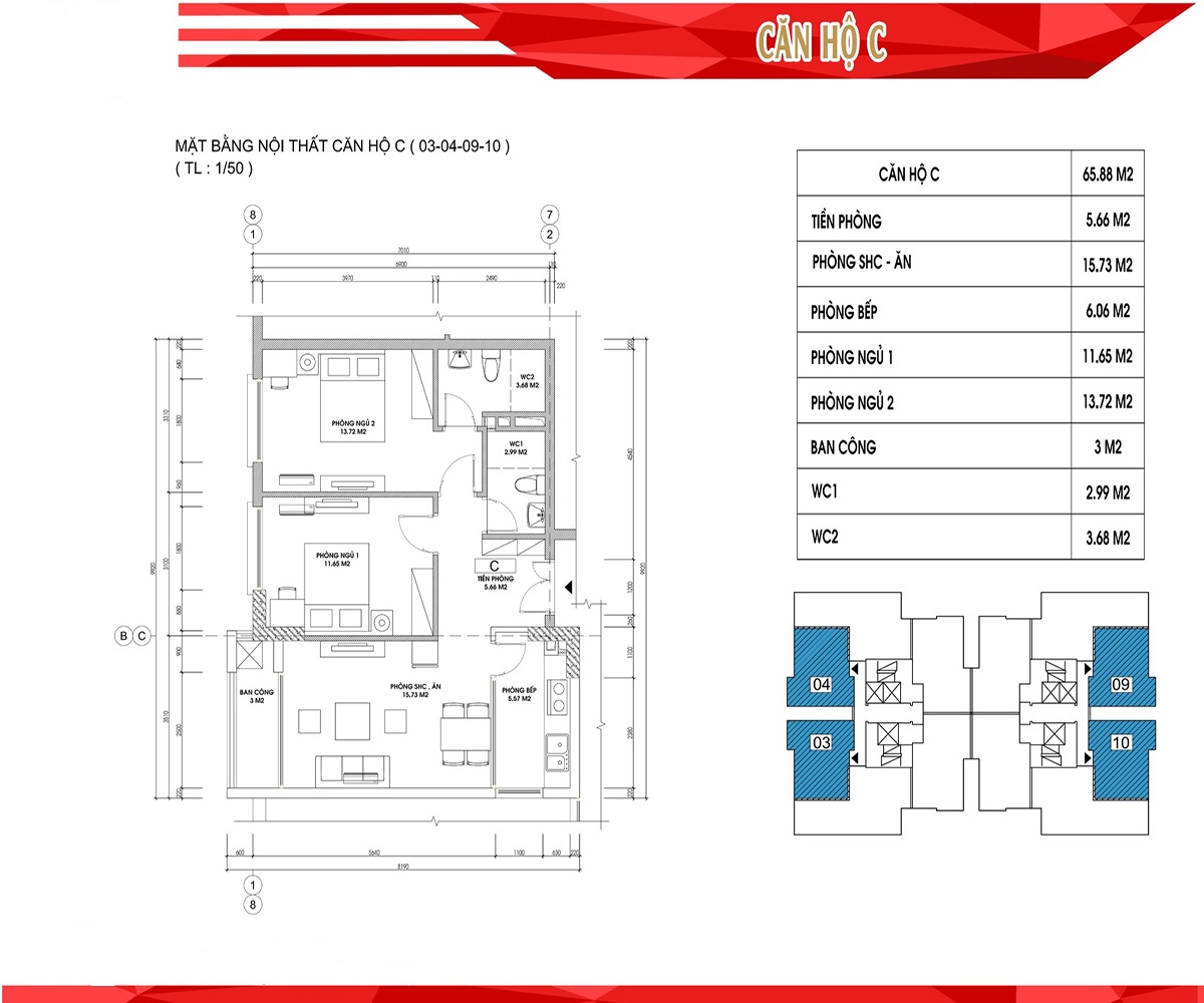
MẶT BẰNG DỰ ÁN XUÂN ĐỈNH RESIDENCE
- Với phương châm “Xây nhà cho khách phải giống như xây nhà cho mình”, Chủ đầu tư Dự án C1-C2 Xuân Đỉnh đã rất chú trọng lựa chọn đối tác tư vấn thiết kế, nhà thầu thi công và đơn vị giám sát uy tín hàng đầu. Ngoài ra, vật liệu sử dụng cho công trình cũng đều được kiểm định nghiêm ngặt, đảm bảo sự tiện dụng và tối tân nhất, mang đến không gian sống chất lượng cho cư dân.



- Được tư vấn thiết kế bởi những kĩ sư vàng của Việt Nam căn hộ tại Xuân Đỉnh Residence mang đến vẻ đẹp sang trọng, phong cách thượng lưu cho chủ nhân ngôi nhà. Mỗi căn hộ được thiết kế để có thể lấy được hầu hết ánh sáng và gió trời vào trong căn hộ mang đến cảm giác thư giãn và thoải mái sau những giờ phút làm việc căng thẳng và mệt mỏi. Bên cạnh đó, phong cách trang trí, nội thất tại đây cũng là điểm cộng không thể bỏ qua khi lựa chọn nơi đây là nơi xây dựng tổ ấm của mình.






- Mỗi chi tiết nội thất đều toát lên vẻ thanh lịch, sang trọng đúng chất, để gia chủ có thể trải nghiệm đẳng cấp sống đỉnh cao trong từng centimet. Hơn thế, toàn bộ quang cảnh thành phố sôi động sẽ tràn vào nhà qua tầm nhìn paronama không giới hạn, cả thủ đô hoa lệ đều được thu trọn vào tầm mắt của chủ nhân
LIÊN HỆ TƯ VẤN VÀ ĐẶT LỊCH XEM DỰ ÁN
HOTLINE: 0964.63.36.26
************