LIỀN KỀ - SHOPHOUSE BELLEVILLE HÀ NỘI
Nhận ký gửi Bán & cho thuê Liền kề - Shophouse Belleville Hà Nội
Hotline: 0964.63.36.26
************

TỔNG QUAN DỰ ÁN BELLEVILLE HÀ NỘI
- Tên dự án: Biệt thự liền kề Belleville Hà Nội
- Vị trí: Lô đất B4 Nam Trung Yên, Quận Cầu Giấy, TP Hà Nội
- Chủ đầu tư: Vimedimex Group
- Diện tích dự án: 1.5ha;
- Số lô: 66 lô
- Diện tích: 111 – 116 – 120 – 227 – 268 – 310m2
- Hình thức sở hữu: Sổ đỏ vĩnh viễn

VỊ TRÍ & TIỆN ÍCH DỰ ÁN BELLEVILLE HÀ NỘI
- Tọa lạc trên lô đất B4 thuộc KĐT mới Nam Trung Yên, phường Yên Hòa, quận Cầu Giấy, cách Hồ Gươm 7km về phía Đông Bắc, Belleville Hà Nội dễ dàng thể kết nối linh hoạt với các cụm công trình trọng điểm của toàn bộ thủ đô bằng hệ thống giao thông đồng bộ và hiện đại.

- Bên cạnh đó, dự án này nằm trong khu vực được mệnh danh là “cái nôi tri thức” vì tập trung nhiều trường học nổi tiếng như THPT chuyên Amsterdam Hà Nội, THCS Đoàn Thị Điểm, THCS Lương Thế Vinh, Đại học Quốc gia, Học viện Báo Chí,… Cùng với đó là gần các bệnh viện như Bệnh viện 198, Bệnh viện nhi Hà Nội, Bệnh viện Quốc tế Hoa Kỳ,... Có thể nói rằng, Belleville Hà Nội nằm tại vị trí phong thủy, đắc địa và giao thông thuận tiện giúp cho cư dân có thể kết nối linh hoạt với trung tâm của thủ đô cũng như di chuyển đến nhiều địa điểm trong và ngoại thành một cách thuận tiện.

- Lý giải sức hút của Belleville Hà Nội, nhiều nhà đầu tư bất động sản uy tín tại Hà Nội cho rằng, vị trí đắc địa là yếu tố quan trọng tác động rất lớn đến cơ hội đầu tư shophouse của cư dân nơi đây. Nhờ bố trí cửa chính nằm sát 4 mặt đường, trong đó có 2 tuyến đường lớn là Nguyễn Chánh và Mạc Thái Tổ, Shophouse Belleville Hà Nội có được nguồn khách hàng dồi dào là các cư dân đang sinh sống tại đây cũng như các khu vực lân cận khác. Do đó, shophouse nơi đây hứa hẹn sẽ là kênh đầu tư kinh doanh sinh lời cao cho gia chủ.

- Belleville Hà Nội hội tụ đầy đủ yếu tố khẳng định vị thế khu nhà phố thương mại hiện đại, đáng sống bậc nhất Hà Thành từ lối kiến trúc cổ điển Pháp, vị trí trung tâm sầm uất, cho đến tiêu chuẩn sống xanh kết hợp tiện ích đồng bộ.

- Belleville hơi thở Pháp ngọt ngào dịu êm giữa không gian Hà Nội: Tọa lạc tại mảnh đất vàng trong Khu đô thị mới Nam Trung Yên, Belleville Hà Nội thừa hưởng hạ tầng và giao thông hiện đại, đồng bộ của Khu vực phía Tây Hà Nội cùng nhiều tiện ích như Trung tâm thương mại, siêu thị, trường học, bệnh viện, công viên, hồ điều hòa…

- Với lợi thế từ vị trí đắc địa tiếp giáp 4 mặt đường chính, Belleville Hà Nội đón đầu xu hướng của thị trường BĐS khi thiết kế mô hình nhà phố thương mại – shophouse sang trọng kết hợp hoàn hảo hai chức năng sinh hoạt và thương mại. Sở hữu các căn hộ mặt tiền thoáng đẹp, shophouse nơi đây chắc chắn sẽ trở thành kênh đầu tư kinh doanh sinh lời vô cùng hấp dẫn cho gia chủ.

- Một yếu tố tạo nên nét khác biệt riêng cho Belleville Hà Nội là phong cách kiến trúc cổ điển thấm đẫm hơi thở Pháp. Belleville Hà Nội dường như kết tinh của mối “lương duyên” giữa Kiến trúc sư tài hoa người Pháp – Francois Barberot và mảnh đất Thủ đô ngàn năm văn hiến. Sau nhiều năm lựa chọn Hà Nội làm nơi gắn bó, Francois mong muốn mang đến cho Hà Nội một góc kiến trúc Pháp cổ điển quen thuộc pha trộn nét mới mẻ của kiến trúc hiện đại phương Tây. Khu nhà phố thương mại Belleville mang nét thiết kế của thành phố Belleville ngoại ô Paris, yêu kiều dưới những vòm cây xanh mát, nhộn nhịp tấp nập những dãy phố thương mại

- Không chỉ đem đến cho thủ đô một công trình nhà ở hiện đại với dấu ấn Pháp đặc trưng, Belleville Hà Nội còn là khu vườn thanh bình, nép mình bên những ồn ào đô thị. Dự án tuân thủ tiêu chuẩn quốc tế của một công trình xanh, thân thiện với môi trường, từng vật liệu thân thiện với thiên nhiên, sử dụng năng lượng tái tạo được chủ đầu tư lựa chọn kĩ lưỡng; các khoảng cách và tỉ lệ kiến trúc định hình trên cơ sở nghiên cứu hướng nắng, gió nhằm giảm thiểu tác động của khí hậu, dịu bớt ánh sáng mạnh của miền nhiệt đới.
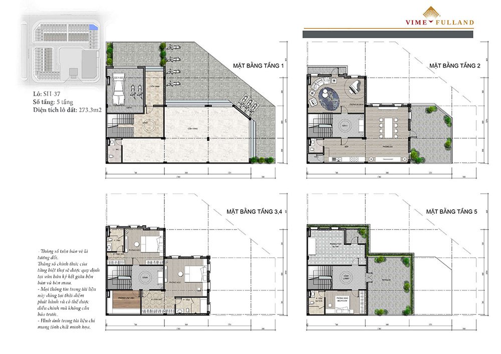
MẶT BẰNG DỰ ÁN BELLEVILLE HÀ NỘI
- Biệt thự liền kề Belleville B4 Nam Trung Yên là một khu nhà phố thương mại xinh đẹp, thành phố Belleville nước Pháp thu nhỏ giữa lòng Hà Nội. Phối hợp hài hòa cùng với lối kiến trúc cổ điển bên ngoài, phần thiết kế nội thất thể hiện một không gian sống sang trọng với những đường nét mang dáng dấp dinh thự quý phái kiểu Pháp. Bên cạnh đó, nhằm tạo ra không gian sống đầy ánh sáng và yên bình trong lòng thủ đô sầm uất, huyên náo, nội thất Belleville Hà Nội thể hiện sự hài hòa giữa những gam màu sáng và được tô điểm thêm bởi những chi tiết đồng, cùng một số gam màu tối. Hơn cả bài trí và sắp xếp nội thất có tính thẩm mỹ cao, nơi đây còn là sự giao thoa của nét tinh tế xưa và nhu cầu tiện nghi ngày nay.

- Nếu phía ngoài là không gian thương mại đông vui nhộn nhịp, thì phía trong là khu biệt thự liền kề yên bình và mát mẻ với khu vườn cây rộng rãi được thiết kế theo phong cách cổ điển hòa nhập với kiến trúc công trình. Mỗi mẫu nhà đều sở hữu garage ô tô, cổng vào rộng rãi đi qua một khoảng sân nhiều cây xanh dẫn vào khu sảnh sang trọng. Phòng khách ở tầng 1 được bố trí phía bên trong đảm bảo sự riêng tư thoải mái, có hướng nhìn ra khu ngồi nghỉ thư giãn phía sau. Tầng 2 bao gồm phòng sinh hoạt chung rộng rãi được thiết kế sang trọng, phong cách cùng khu bếp mở và phòng ăn. Các tầng phía trên là các phòng ngủ riêng tư, phòng thờ, và sân vườn. Phòng khách với không gian mở cùng với nội thất hiện đại, tinh tế với những đường nét mang dáng dấp dinh thự quý phái kiểu Pháp.















- Nhằm phục vụ nhu cầu mua sắm tiện nghi của khách hàng, khu shophouse được đặt ở phía bên ngoài của khu đô thị tiếp giáp với những tuyến phố chính. Mỗi mẫu nhà sở hữu một khoảng sân rộng phía trước tiện lợi cho việc bố trí xe cộ. Tầng 1 gồm 2 lối vào: 1 lối dẫn vào không gian thương mại, 1 lối dành riêng cho gia chủ. Bắt đầu từ tầng 2 là không gian sống riêng tư của gia đình với phòng khách được bố trí phía trước để lấy được hết hướng nhìn ra đường phố bên ngoài, phía sau là khu bếp. Các phòng ngủ đều được thiết kế dưới dạng phòng master và được bố trí ở tầng 3, 4. Tầng áp mái gồm 1 phòng thờ gắn liền với không gian xanh mát trên mái và một phòng ngủ nhỏ. Sự hài hòa giữa những gam màu sáng và được tô điểm thêm bởi những chi tiết đồng, cùng một số gam màu tối trong phòng bếp
LIÊN HỆ TƯ VẤN VÀ ĐẶT LỊCH XEM DỰ ÁN
HOTLINE: 0964.63.36.26
************